résidence sécurisée Lanton
Appartement 40 m² Lanton
Appartement proche bassin
Appartement idéal investisseur BASSIN d'ARCACHON
Appartement dans résidence calme
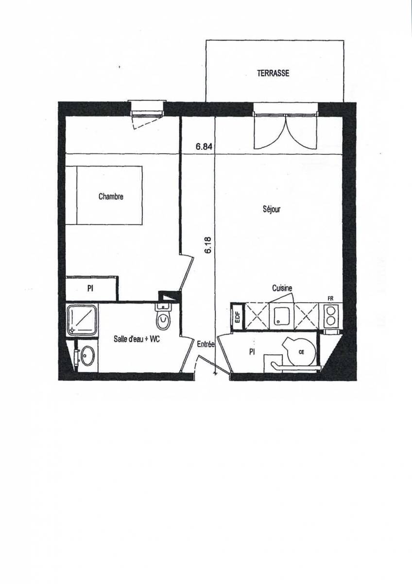
Plan appartement T2 LANTON
Appartement T2 LANTON
Cette annonce n'est plus disponible découvrez nos dernières annonces
  1. Accueil
  2. Nos biens vendus
  3. APPARTEMENT T2 -VENDU LANTON
Retour
Vendu

APPARTEMENT T2 -VENDU LANTON

Référence : 673


TAUSSAT IMMOBILIER vous propose à la vente  à LANTON un appartement  de type T2 de 40 m2 en rez-de-chaussée d'une résidence sécurisée.
Il se compose d'une entrée ouvrant sur la pièce de vie avec cuisine ouverte,1 grande chambre avec placard, 1 salle d'eau/wc, 1cellier et une terrasse couverte de 5m2 exposée S/E.
2 Places de parking aérien privatives.
La résidence dispose d'un local à vélo.
Libre à compter du 29 Août 2022
Copropriété de 99 lots dont 33 lots principaux répartis en 2 bâtiments.
Charges annuelles 979,56 €
Pas de procédure en cours.
Idéal investisseurs

Le prix indiqué comprend les honoraires à la charge de l'acquéreur : 5% TTC du prix du bien hors honoraires
Prix hors honoraires :170 000 €

Ce bien vous intéresse ? Pour plus d'informations ou pour une visite n'hésitez pas à contacter TAUSSAT IMMOBILIER via le formulaire ou directement au 05 40 25 27 65

Voir nos honoraires
Fiche technique
Procédure en cours :
NON
Année de construction :
2012
Charges courantes annuelles :
979
Taxe foncière :
676€
Superficie :
40m²
Surface séjour :
21m²
Surface terrain :
0m²
Surface chambre 1 :
12m²
Niveaux :
1
Copropriété :
OUI
Nombre de lots de la copropriété :
99
Contact
Les champs indiqués par un astérisque (*) sont obligatoires
Confiez-nous votre bien